日本建築学会九州支部長賞 受賞/福岡県建築士会賞 受賞 江本卓生・岡村信一郎
















本研究は福岡県建築士会まちづくり・地域貢献活動事業に採択されました。

研究対象
対象とする敷地は福岡県豊前市大字鳥井畑地区である。この地区には豊前市にある求菩提山を支えてきた鳥井畑集落が存在し、この集落を中心として広範囲に伝統的な石積みの棚田がある。この様な集落と石垣の棚田を有する農村景観の融合は、国の重要文化的景観にも選定されている。全体としては母屋と馬屋をセットにした屋敷構えの住宅で、改修により屋根や壁面は建設当初の様式を留めていないものの、その多くは40~50年以上経過している。こうした建造物は産家集落まで含めると48棟を数え、全体の85%にのぼる。また、明治元年に求菩提の山中より移築したものも確認され、「ザシキ」「ナカアノマ」「ヒロマ」の表向き空間と「オクザシキ」「ナンド」「イマ」の内向き空間とが区別されている六間取り平面は、本地域の伝統的な建築様式として看取できる。
聞き取り調査
古民家を建てた夫婦のお孫さんに会い、以下の話を聞くことができた。この話を参考にして、古民家のあり方や生活様式を古民家の再生案に組み込んでいく。
この古民家は祖父母が結婚するときに建てたそうで、約百年の歴史がある。鳥井畑地区の小学校や神社を建てるときに集めた宮大工の方々を宿泊させるために広く増築した。また、時代の流れに合わせて、居間を台所に改築した。台所に掘りごたつがあるのはその名残だ。母屋の二階は納戸で家財や骨董品などをしまって、生活などで使っていたわけではない。
納屋の右の倉庫で牛を飼っていて、二階では蚕を飼い、糸を織っていた。ヒラマに直接出入り可能な階段が設置されていて特別な人を招くときに使用していた。私は、この古民家であまりモノがない生活を送っていて、それが美しかった。また、このような空間で生活したい。
この古民家の再生案を提案するうえで、昔の使われ方と豊前の歴史を照らし合わせ、改善する箇所と残さない箇所を分別した。
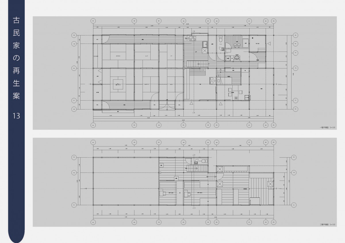
改修計画
古民家の元の使い方を活かしつつ、山村留学の寮としての再生案を計画した。基本的に柱の位置は変更せずに利用した。母屋でも鳥井畑地区、特有の六つ間取りの部分は変更せずに細かなところと水周りを主に変更した。納屋も水周りを変え納屋の一つを事務室と宿直室に変更した。母屋も納屋も二階の床が床板一枚で抜けそうだったので、しっかりとつくり抜けないようにした。そのため全体の高さが上がった。平日と休日では古民家にいる間のスケジュールは基本的に同じである。
母屋も納屋も二階の床が床板一枚で抜けそうだったので、しっかりとつくり抜け落ちることがないようにした。そのため全体的に高さが上がっているが、二階の床から小屋組みまでの高さは変えていない。宿直室は靴を脱いで使用するため事務室から少しレベルを上げている。母屋は既存の外観からはあまり変更せずに計画した。変えた箇所は縁側の窓の横幅を少し小さくし、踏石を縁側の窓の端まで伸ばした。トイレがあった箇所を無くし、山側に窓をいくつか追加しただけである。納屋は事務室に変更し大きめの窓を設置、外付けのトイレは無くした。高さも上がっている。

